Full Set of Plans

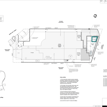
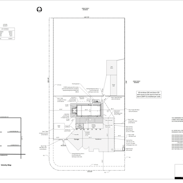
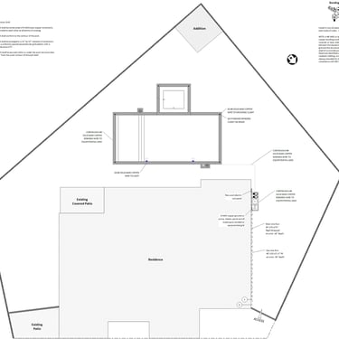
Plot
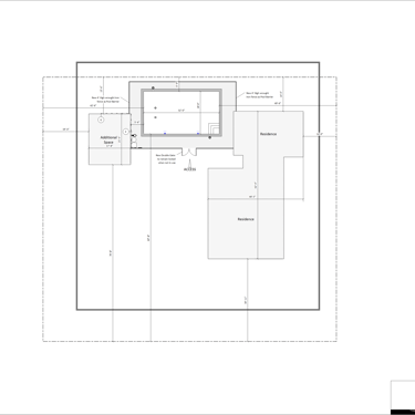
Layout
Here is where the whole design starts. We'll take your whole yard and lay it out on a page that generally has a scale of 1"=20'. This one is mainly for the permitting purposes, but can help you as well. One of the biggest parts of putting together your plan is our ability to put in all the information that is needed for your yard to become the place that you want to hang out and so that a county inspector is satisfied in the end.
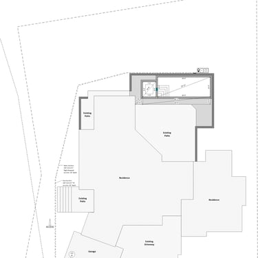
This one can be the one of the most difficult design items to put in your yard. But don't worry, we know the easiest ways to do it. Whether your pool is a rectangle, an intricate block pattern or a wondering pool without a single straight line, we can show you how to put it on the ground. No matter what your yard has in it and regardless of your ability to put it down, we have a basic set of rules to help you get it done.
Plumbing
Now that your got a hole in the ground, you need to know how the plumbing and the equipment is going in your yard. We will tell you where the plumbing goes in the pool, where the equipment is going, how it's all connected and anything else you'll need to know. Now, there are some decisions that you'll need to make, but we'll work with you on those as well.
Bonding
The design of the bonding to the pool is fairly simple. Unfortunately, the electrical install and design is something that we cannot do, this needs to be done by your electrician. However, we have no problem putting that information on your plans once you have it. Check with your local regulations to see if you require these drawings.
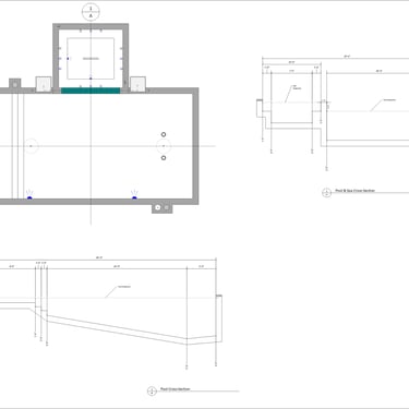
Cross Section
This is the last step to create your pool. It shows you how the pool will be laid out from a vertical perspective. Basically, we'll take your pool with the depths and draw out a summary of how it's built. Take the time to review the pool so that we make it the way you want it and it is installed correctly.






















